ID CP2972592

Casa noua, P+M, 4 camere, terasa, teren 550 m2, central, Cornu

ID CP2972592

199,999 €

Casă / Vilă cu 4 camere de vânzare
Cornu
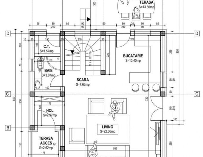
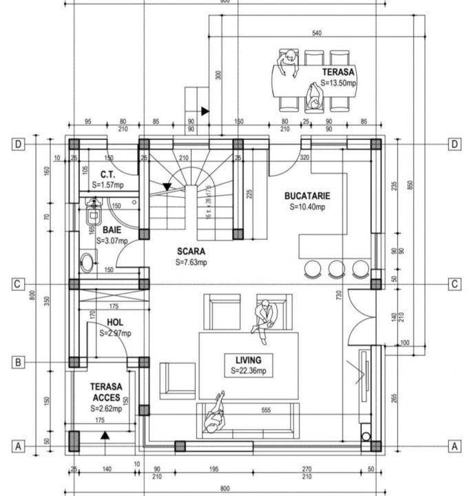
93.85 mp
2026

Agenția Imobiliară Sun Imob vă oferă spre vânzare o casă de tip P+M, situată în Cornu, Prahova, într-o zonă deosebită ce îmbină liniștea și aerul curat al localității cu accesul facil atât către București, cât și către Valea Prahovei. Proiectul cuprinde două case, dintre care prima are termen de finalizare august 2026, iar cea de-a doua urmează să fie construită ulterior. Viitorul proprietar are ocazia unică de a-și alege personal anumite finisaje dorite, în funcție de propriile preferințe și stil, în limita unui buget prestabilit. Casele se vând la cheie, complet finalizate.

Imobilul dispune de o structură solidă realizată din beton armat și cărămidă Porotherm, izolată la exterior cu polistiren de 10 cm, acoperiș Wetterbest din tablă de 0,5 și este racordat la toate utilitățile necesare – apă curentă, gaze naturale, energie electrică și canalizare.

La interior și exterior sunt prevăzute numeroase îmbunătățiri: tâmplărie PVC cu geam termopan, gresie, faianță, parchet, încălzire în pardoseală, terasă acoperită, poartă de acces auto și pietonală din fier forjat, trotuar din beton în jurul casei, curte nivelată, balustrade din fier forjat pentru scările interioare și exterioare, precum și pentru balcon. Materialele utilizate sunt de calitate superioară, alese cu grijă de un dezvoltator cu experiență și de încredere.

Pentru cei interesați există posibilitatea semnării unui antecontract oricând. Această proprietate reprezintă o oportunitate excelentă de a achiziționa o locuință modernă, confortabilă și bine poziționată, construită cu materiale de calitate și finisaje la alegere.

Vizionările se fac cu programare în prealabil.

Citește mai mult

  • Număr camere
    4
  • Dormitoare
    2
  • Număr bucătării
    1
  • Număr băi
    2
  • Geam la baie
    Da
  • Număr balcoane
    1
  • Număr terase
    1
  • Număr locuri parcare
    2
  • Disponibilitate
    Imediat
  • Tip casă
    Individual
  • Suprafață utilă
    93.85 mp
  • Suprafață construită la sol (Amprentă)
    64.0 mp
  • Suprafață teren
    550 mp
  • Suprafață terasă
    13.5 mp
  • Stadiu construcție
    În construcție
  • An construcție
    2026
  • Construcție nouă
    Da
  • Tip construcție
    Cărămidă
  • Are mansardă
    Da

Facilități

Acoperiș
Apă
Apometre
Calorifere
Canalizare
CATV
Centrală proprie
Contor gaz
Curent
Curte
Dressing
Faianță
Ferestre PVC
Gaz
Geamuri termopan
Gresie
Iluminat stradal
Încălzire prin pardoseală
Internet
Izolație exterioară
Mijloace de transport în comun
Parchet
Scară interioară
Senzor de fum
Străzi asfaltate
Telefon
Ușă intrare PVC
Uși interior celulare
Uși interior PVC
Vedere panoramică
Vedere spre munte
Vopsea lavabilă
WC Serviciu
Sun Imob Properties Management
Manager

0722265654


Solicită chiar acum o vizionare
Telefon
Sună acum Solicită vizionare
Necesare:

Site-ul nu poate funcționa corect fără aceste cookie-uri. Vezi cookie-urile

Statistică:

Strângem statistici anonime despre voi, vizitatorii unici, pentru a vă îmbunătăți experiența dumneavoastră. Vezi cookie-urile

Marketing:

Pentru a ne promova mai eficient serviciile noastre, folosim cookies pentru a vă identifica și a vă oferi proprietăți și servicii personalizate. Vezi cookie-urile

Acest site folosește cookies, află detalii. Alege ce tipuri de cookies dorești să permitem: